Hytte 28-L416s
Praktfull stavlafthytte
med 4< soverom
13.100.000,-
Plantegninger og fasader
Status
Pris
Gulvareal
Tomt
1087,3
Soverom
Sengeplasser
Sauna
Ja
TV-stue
Ja
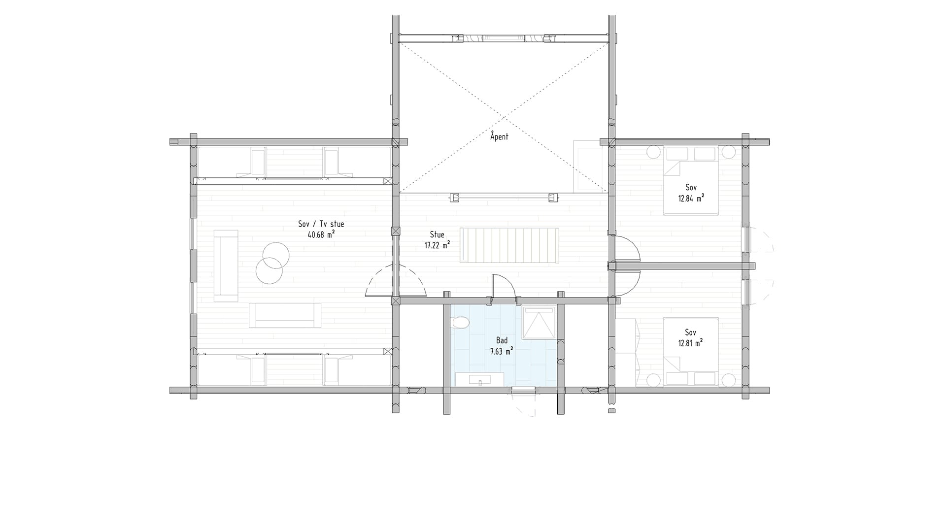
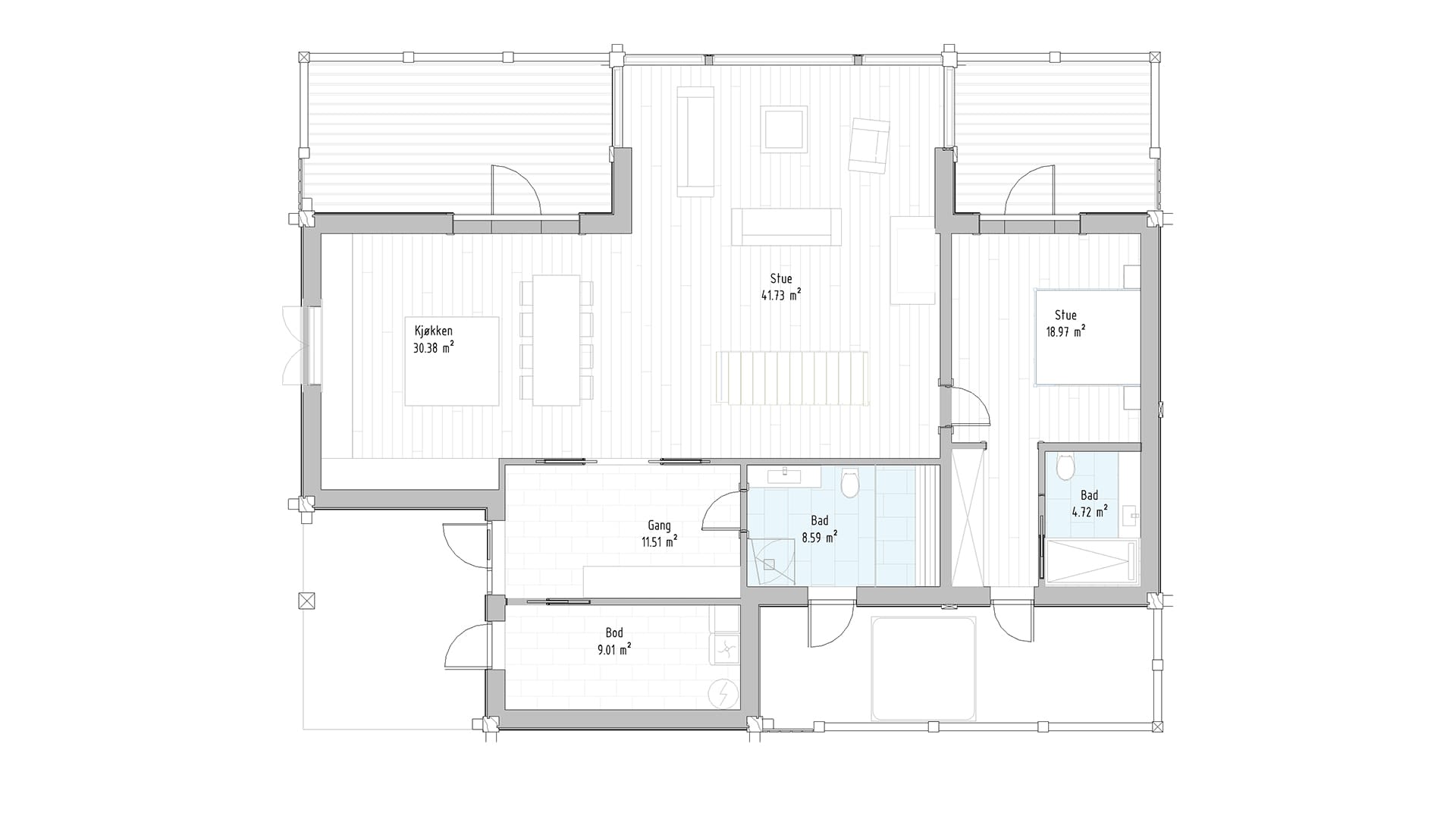
FAKTA
- BYA: 154,9 m2
- BRA: 202,8 m2
- Gulvareal: 125 + 91 m2
- 3 terrasser på totalt 46,4 m2
- 4 soverom, ett i kombinasjon med tv-stue
- 10 sengeplasser
- 3 bad
- Peis
- Sauna
- Master bedroom med eget
bad og utgang til to terrasser - 9 m2 inn-/utvendig bod
Pris fra
13.100.000
Romslig hall med overbygget inngangsparti. Her er det god oppbevaringsplass og adkomst til et flislagt bad med sauna. Fra hallen er det skyvedør til en stor bod med utvendig adkomst fra inngangspartiet. Fra badet er det egen utgang til en terrasse på baksiden av huset. Hallen har to skyvedører videre inn til en stor, velutstyrt kjøkkenavdeling med utgang til terrasse. Den åpne løsningen fører videre til en romslig stue som har peis, god takhøyde og store vindusflater som gir utsikt utover dalen og alpinbakkene. Innenfor stuen ligger et master bedroom med eget flislagt bad, godt med garderobeplass og utgang til terrasser både på frem- og baksiden av huset. Andre etasje har et flislagt bad, to soverom, stor gang og TV-stue med fire ekstra sengeplasser. Store vinduer i TVstuen og en glassvegg med glassdør ut til gangen gir en åpen romfølelse og slipper inn mye lys.
Et prosjekt av
