Hytte 5-L3
Moderne stavlaftet hytte
med 11 sengeplasser
Plantegninger og fasader
Last ned prospekt
Status
Sold
Pris
P-Rom m²
135
Tomt m²
865
Soverom
5
Sengeplasser
11
Sauna
Ja
TV-stue
Ja
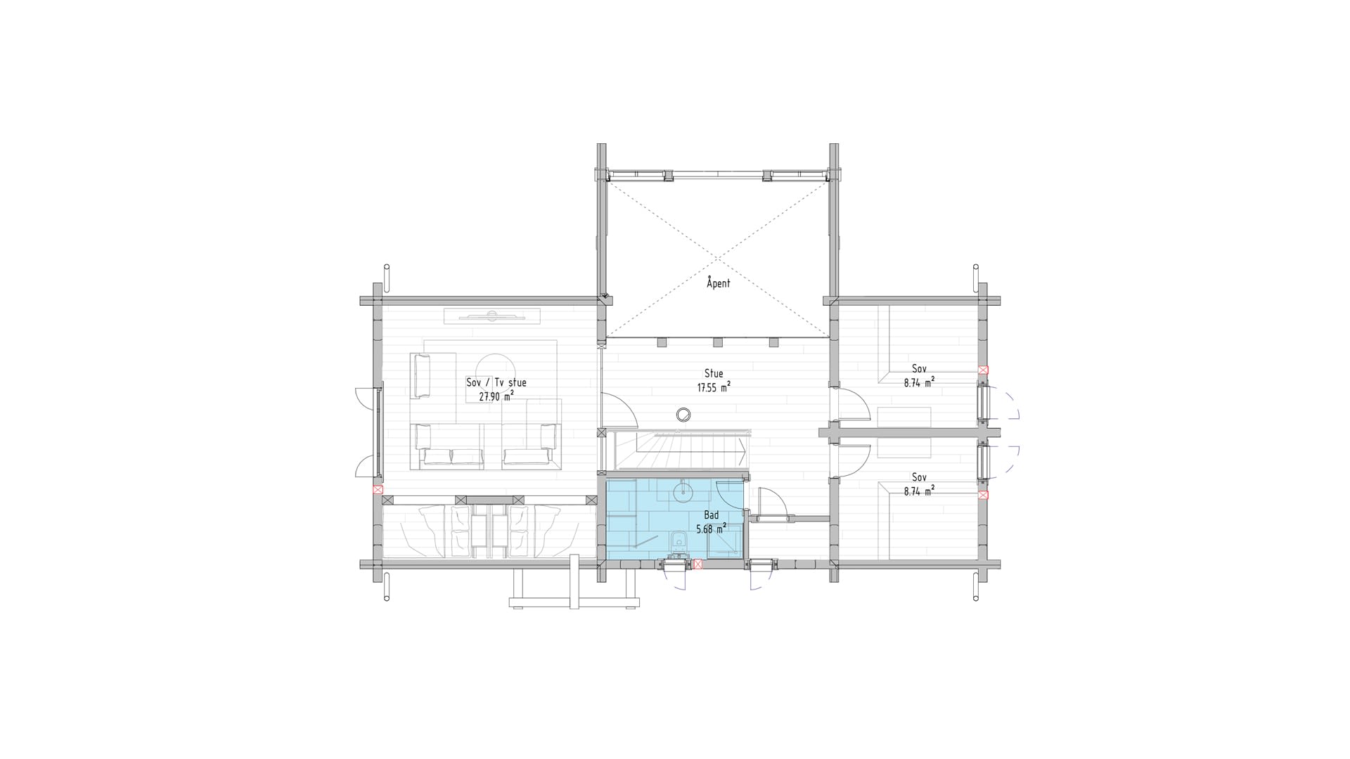
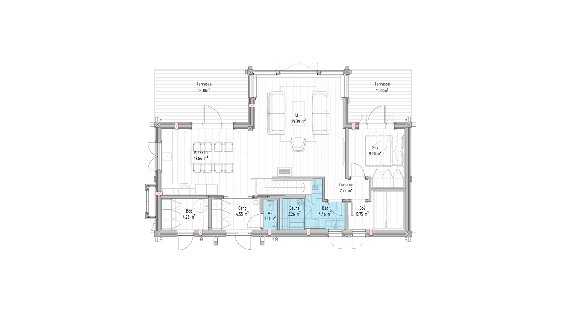
FAKTA
- Gulvareal: 151 m2 (81 + 70 m²)
- BYA: 100 m²
- BRA: 140 m²
- 2 terrasser (15 + 10 m2)
- 5 soverom, ett i kombinasjon med tv-stue
- 11 sengeplasser
- 2 bad + wc
- Peis
- Sauna
- Bod i andre etage
- 4,3 m2 utvendig bod + skibod
Pris
8 900 000,-
Pantattest kjøper: 200,-
Tingl.gebyr pantedokument: 585,-
Tingl.gebyr festekontrakt: 585,-
________________________________
Totalpris: 8.901.370,-
Et prosjekt av
