Hytte 19-L216
Moderne tømmerlafthytte
med 5 soverom
10.680.000,-
Plantegninger og fasader
Status
Solgt
Pris
Gulvareal
155
Tomt
834,1
Soverom
5
Sengeplasser
11
Sauna
Ja
TV-stue
Ja
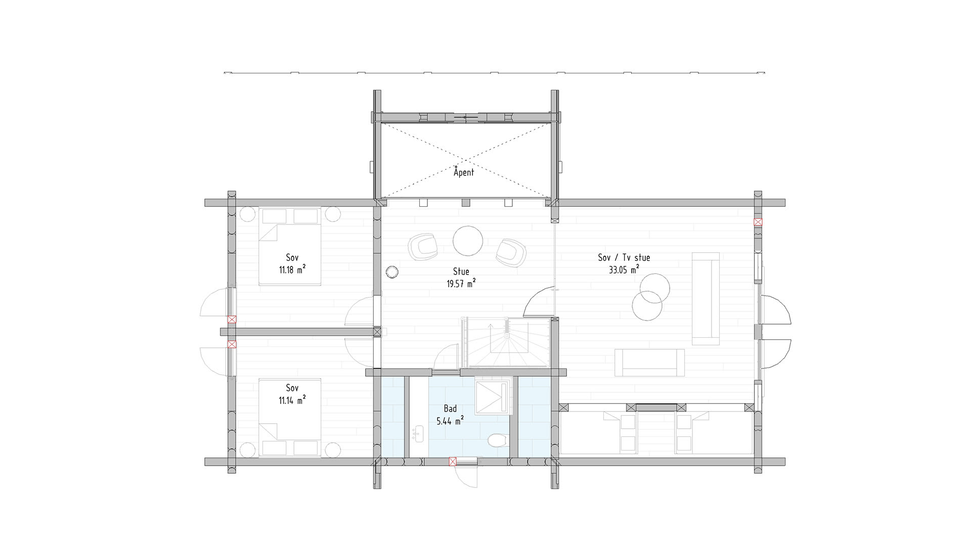
FAKTA
- BYA: 105,8 m2
- BRA: 155,0 m2
- Gulvareal: 89 + 80 m2
- 34 m2 terrasse
- 5 soverom, ett i kombinasjon med tv-stue
- 11 sengeplasser
- 2 bad + wc
- Peis
- Sauna
- 4 m2 inn-/utvendig bod + skibod
Pris fra
10.680.000
Romslig hall med god oppbevaringsplass og dør videre til gjestetoalett og bod, som også har utvendig adkomst. Skibod rundt hjørnet fra entréen. Fra hallen kommer man inn til en stor, velutstyrt kjøkkenavdeling med utgang til terrasse. Den åpne løsningen fører videre til en romslig stue med god takhøyde og store vindusflater som gir utsikt utover dalen og alpinbakkene. Innenfor stuen ligger to soverom og et flislagt bad med sauna. Hovedsoverommet har utgang til terrasse. Andre etasje har et flislagt bad, to soverom, stue og TV-stue med ekstra sengeplasser. Store vinduer i TVstuen og en glassvegg med glassdør ut til stuen gir en åpen romfølelse og slipper inn mye lys.
Et prosjekt av
